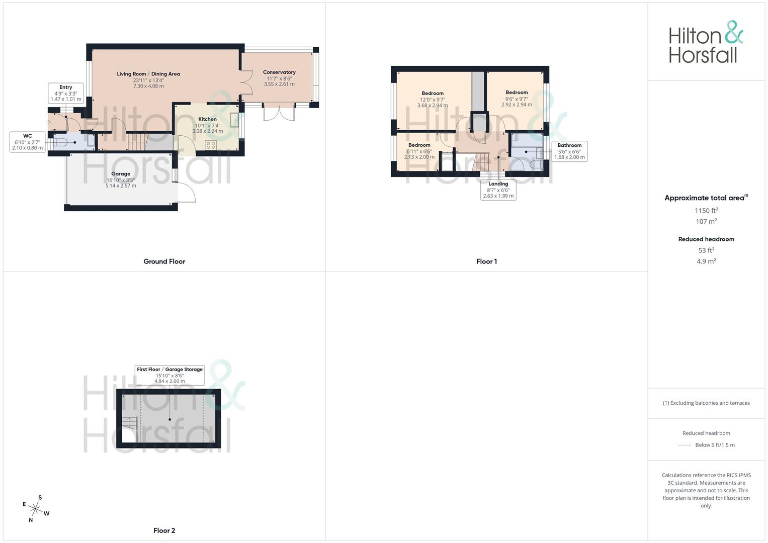
GROUND FLOOR
ENTRANCE
GROUND FLOOR WC 2.10m x 0.80m (6'10" x 2'7")
The ground floor WC is a useful addition to the property, fitted with a two-piece suite comprising a low-level WC and wash basin. Finished with neutral décor, it provides practical convenience for everyday family life and visiting guests.
LIVING ROOM / DINING AREA 7.30m x 4.08m (23'11" x 13'4")
The open-plan living and dining area is a spacious and well-presented room, ideal for both relaxing and entertaining. Finished with modern flooring and a neutral décor throughout, the space is enhanced by recessed ceiling spotlights and a large front-facing window that allows plenty of natural light to flow in. There is ample room for a generous seating arrangement along with a dedicated dining area, creating a versatile and sociable layout that suits modern family living.
KITCHEN 3.08m x 2.24m (10'1" x 7'4")
Located to the rear of the property, the kitchen is a bright and stylish space fitted with a modern range of white shaker-style units, complemented by quartz-effect work surfaces, a contemporary subway tile splashback and under-cabinet lighting. Integrated appliances include a double oven and electric hob with sleek extractor, while the stainless-steel sink sits beneath a rear-facing window overlooking the garden. Finished with tiled flooring and recessed ceiling spotlights, the kitchen also benefits from a useful side door providing direct access to the garden, ideal for everyday family life.
CONSERVATORY 3.55m x 2.61m (11'7" x 8'6")
The conservatory is a bright and versatile addition to the home, enjoying attractive views over the rear garden and providing an ideal space for a range of uses, including a sitting area, home office or playroom. Featuring glazed windows and French doors opening directly onto the patio, the room allows plenty of natural light to flood in and creates a seamless connection between the indoor and outdoor space, making it perfect for everyday family living.
FIRST FLOOR / LANDING
BEDROOM ONE 3.68m x 2.94m (12'0" x 9'7")
Situated to the front of the property, the principal bedroom is a well-proportioned and tastefully presented double room, featuring a pleasant outlook and a calm, neutral décor. The room benefits from fitted wardrobe storage, providing excellent hanging and shelving space, and comfortably accommodates a double bed along with additional bedroom furniture, making it an ideal main bedroom.
BEDROOM TWO 2.92m x 2.94m (9'6" x 9'7")
Positioned to the rear of the property, bedroom two is a well-proportioned and light-filled room, currently arranged as a child’s bedroom but equally suited for use as a guest room or home office. The room enjoys a pleasant outlook over the rear garden and provides ample space for a bed and additional furniture, making it a versatile and comfortable second bedroom.
BEDROOM THREE 2.13m x 2.00m (6'11" x 6'6")
Bedroom three is positioned to the front of the property and offers a light and comfortable space, ideal for use as a child’s bedroom, nursery or home office. The room benefits from an inbuilt storage cupboard over the stairs, providing useful additional storage, and comfortably accommodates bedroom furniture while enjoying a pleasant front-facing outlook.
BATHROOM 1.68m x 2.00m (5'6" x 6'6")
The bathroom is fitted with a modern three-piece suite comprising a panelled bath with shower over, wash basin set within a vanity unit and a low-level WC. Finished with contemporary tiling and a frosted window providing natural light and privacy, the room offers a clean, bright and practical space, ideal for everyday family use.
GARAGE 5.14m x 2.57m (16'10" x 8'5")
The property benefits from a garage offering useful ground floor parking or storage space, with an access door to the rear allowing convenient entry from the garden, located adjacent to the kitchen door. In addition, the garage features a wooden staircase leading to a first-floor storage area, providing excellent additional space ideal for storage or hobbies, making this a highly practical and versatile asset.
360 DEGREE VIRTUAL TOUR
https://tour.giraffe360.com/hunters-drive-burnley
LOCATION
Hunters Drive is a popular residential cul-de-sac situated in a convenient area of Burnley, well regarded for its family-friendly environment. The property is ideally positioned close to St Mary Magdalene’s Primary School, Wellfield School and Chez Nanny Nursery, making it an excellent choice for families. A range of local amenities, transport links and countryside walks are also easily accessible, while Burnley town centre and surrounding villages are within comfortable reach.
PUBLISHING
You may download, store and use the material for your own personal use and research. You may not republish, retransmit, redistribute or otherwise make the material available to any party or make the same available on any website, online service or bulletin board of your own or of any other party or make the same available in hard copy or in any other media without the website owner's express prior written consent. The website owner's copyright must remain on all reproductions of material taken from this website. www.hilton-horsfall.co.uk
PROPERTY DETAIL
Unless stated otherwise, these details may be in a draft format subject to approval by the property's vendors. Your attention is drawn to the fact that we have been unable to confirm whether certain items included with this property are in full working order. Any prospective purchaser must satisfy themselves as to the condition of any particular item and no employee of Hilton & Horsfall has the authority to make any guarantees in any regard. The dimensions stated have been measured electronically and as such may have a margin of error, nor should they be relied upon for the purchase or placement of furnishings, floor coverings etc. Details provided within these property particulars are subject to potential errors, but have been approved by the vendor(s) and in any event, errors and omissions are excepted. These property details do not in any way, constitute any part of an offer or contract, nor should they be relied upon solely or as a statement of fact. In the event of any structural changes or developments to the property, any prospective purchaser should satisfy themselves that all appropriate approvals from Planning, Building Control etc, have been obtained and complied with.
Externally, the property enjoys a pleasant cul-de-sac position with a driveway to the front providing off-road parking and access to the garage. To the rear is an enclosed, tiered garden featuring a patio seating area, well-maintained lawn and a pond / water feature, creating an attractive and peaceful outdoor space ideal for relaxing and entertaining. The garden offers a good degree of privacy and is perfectly suited for families and those who enjoy outdoor living.
