For Sale
Virtual Tour
£392,500 OIRO

Claremont Street, Colne

  • Type: House
  • Availability: For Sale
  • Bedrooms: 3
  • Bathrooms: 3
  • Reception Rooms: 2
  • Council Tax Band: C
  • Tenure: Freehold
Nestled within a peaceful residential cul-de-sac in a sought-after area of Colne, this beautifully presented detached family home offers a perfect blend of modern comfort and versatile living space. F...
BOOK A VIEWING

Key Features

  • Beautifully presented detached family home in a quiet cul-de-sac
  • Spacious four-bedroom layout with modern décor throughout
  • Stylish open-plan kitchen and dining area with garden outlook
  • Versatile ground-floor sitting room / fifth bedroom and utility / WC
  • Master bedroom with en-suite plus contemporary family shower room
  • Attractive landscaped rear garden, driveway and integral garage


Full property description


Nestled within a peaceful residential cul-de-sac in a sought-after area of Colne, this beautifully presented detached family home offers a perfect blend of modern comfort and versatile living space. Finished to a high standard throughout, the property provides bright and spacious accommodation arranged over two floors, ideal for families seeking both functionality and style. The ground floor features a welcoming hallway, a generous main living room, a versatile second sitting room or ground-floor bedroom, a modern kitchen open to a dining area, and a useful utility / WC. To the first floor are four well-proportioned bedrooms, including a superb master suite with en-suite shower room, alongside a contemporary family shower room. Externally, the home enjoys an attractive frontage with driveway parking, a detached garage, and a private landscaped garden to the rear. Combining a tranquil location with easy access to local amenities, schools, and countryside walks, this is an exceptional home perfectly suited to modern family life.

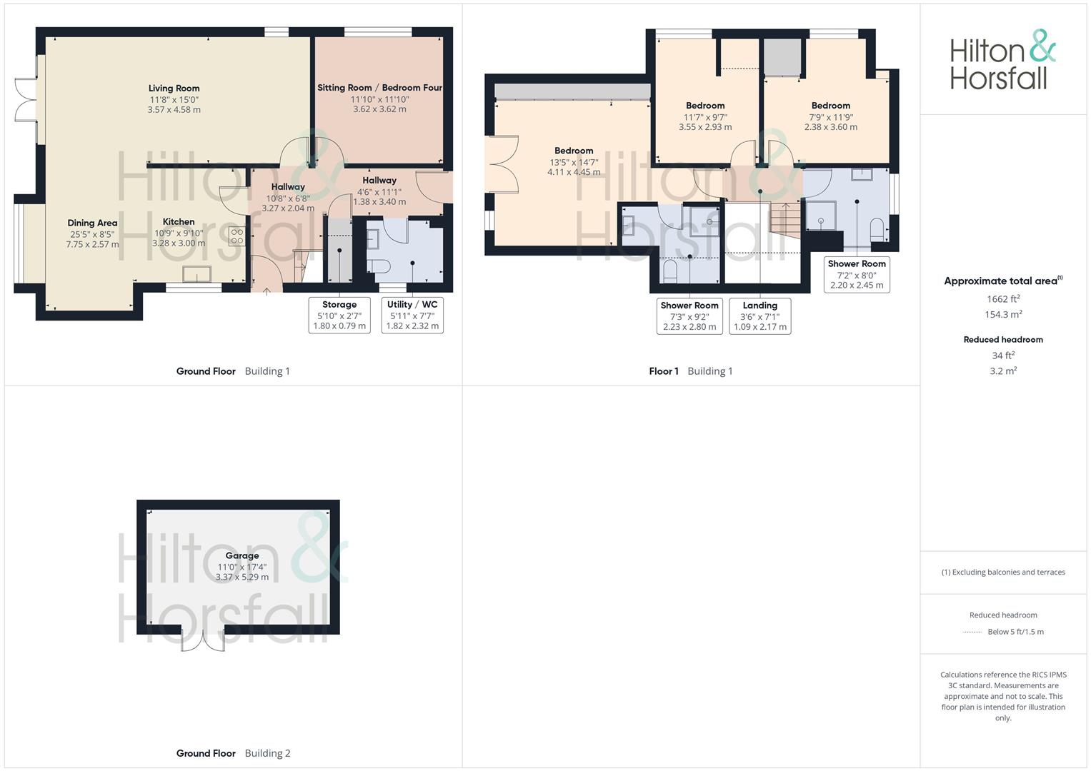
GROUND FLOOR

HALLWAY
A welcoming entrance hallway featuring solid wood flooring, neutral décor, and a beautifully crafted staircase leading to the first floor. The space offers access to the main reception rooms and benefits from under-stairs storage, modern internal doors, and attractive finishing touches that create an immediate sense of warmth and style upon entering the home.

LIVING ROOM 3.57m x 4.58m (11'8" x 15'0")
A beautifully bright and spacious main reception room extending the full depth of the property. This inviting space enjoys an abundance of natural light through French doors that open out onto the rear deck, perfectly framing the garden and countryside views beyond. The room features a modern fireplace with surround, neutral décor, and ample space for a variety of furniture arrangements, creating a relaxing and sociable environment ideal for family living and entertaining alike.

DINING AREA 7.75m x 2.57m (25'5" x 8'5")
A bright and elegant dining space positioned just off the kitchen, ideal for both everyday family meals and entertaining guests. The room features a charming bay window overlooking the rear garden, allowing natural light to flood the space. Tastefully decorated in neutral tones, the dining area comfortably accommodates a large table and chairs, maintaining a warm and welcoming atmosphere that connects beautifully with the adjoining living and kitchen areas.

KITCHEN 3.28m x 3.00m (10'9" x 9'10")
A stunning, contemporary kitchen fitted with a range of shaker-style wall, drawer, and base units complemented by solid wood work surfaces and under-cabinet lighting. The space is enhanced by integrated appliances, a built-in oven with hob and extractor, and a stainless-steel sink positioned beneath a large window that overlooks the side aspect. The open layout connects seamlessly with the dining area, creating a practical and sociable setting ideal for family living. Stylish pendant lighting and wood flooring complete this inviting and well-designed kitchen space.

UTILITY ROOM / WC 1.82m x 2.32m (5'11" x 7'7")
A practical and well-designed space combining a utility area and cloakroom. Fitted with countertop workspace, storage cupboards, and plumbing for laundry appliances, the room also houses the central heating boiler. The WC area includes a modern two-piece suite comprising a low-level toilet and wash basin, complemented by a window allowing natural light and ventilation. Finished with neutral décor and wood-effect flooring, this room provides both convenience and functionality to the home.

SITTING ROOM / BEDROOM FOUR 3.62m x 3.62m (11'10" x 11'10")
A flexible ground floor room currently used as a second sitting room, ideal as a home office, snug, or optional fourth bedroom. The room is decorated in a modern palette with a feature wall, fitted carpet, and a large window overlooking the front aspect which provides plenty of natural light. Offering excellent versatility, this space can be adapted to suit a range of needs — perfect for guests, multigenerational living, or a quiet retreat away from the main living area.

FIRST FLOOR / LANDING

BEDROOM ONE 4.11m x 4.45m (13'5" x 14'7")
A spacious and beautifully presented master bedroom positioned to the rear of the property, enjoying a peaceful outlook over the garden and open countryside beyond. The room features French doors opening onto a Juliet balcony, allowing plenty of natural light to fill the space. Decorated in soft tones with a stylish feature wall, fitted wardrobes, and ample room for additional furniture. This bedroom also benefits from access to its own en-suite shower room, offering convenience and comfort in an elegant setting.

ENSUITE SHOWER ROOM 2.23m x 2.80m (7'3" x 9'2")
A modern and well-appointed en-suite serving the master bedroom, fitted with a walk-in shower enclosure with glass screen, a pedestal wash basin, and a low-level WC. Finished in neutral tones with contrasting splashback panels, chrome fixtures, and practical flooring, the room is both stylish and functional. Subtle sloped ceilings add character while maintaining a spacious and airy feel, completing this elegant addition to the principal suite.

BEDROOM TWO 2.38m x 3.60m (7'9" x 11'9")
A well-proportioned double bedroom positioned to the side elevation of the property, featuring a large window that allows plenty of natural light to flood the space. Tastefully decorated in soft tones, this room offers a calm and inviting atmosphere, with ample space for bedroom furniture and storage. A versatile room ideal for use as a guest room, child’s bedroom, or home office if desired.

BEDROOM THREE 3.55m x 2.93m (11'7" x 9'7")
A well-presented bedroom positioned to the side elevation, offering ample space for single or twin beds. The room is decorated in a light and cheerful style, with a large window providing natural light and pleasant views. Ideal as a child’s room, guest bedroom, or home office, this versatile space is both comfortable and inviting.

SHOWER ROOM 2.20m x 2.45m (7'2" x 8'0")
A contemporary family shower room fitted with a corner shower enclosure, pedestal wash basin, and low-level WC. Finished in a fresh, neutral colour scheme with complementary flooring and splashback details, the room also features a heated towel rail, recessed lighting, and a frosted window providing natural light and privacy. A stylish and practical space designed for modern family living.

DETACHED GARAGE 3.37m x 5.29m (11'0" x 17'4")
A spacious detached garage equipped with power and lighting, providing excellent storage or workshop potential. Ideal for additional utility space, it complements the property’s driveway and enhances the overall practicality of the home.

360 DEGREE VIRTUAL TOUR
https://tour.giraffe360.com/claremont-street-colne

LOCATION
Located in a highly sought-after area of Colne, this property enjoys a peaceful residential setting with open countryside views while remaining close to everyday amenities. Colne town centre offers a great selection of shops, cafés, restaurants, and well-regarded schools, while nearby Ball Grove Park and Wycoller Country Park provide scenic walks and outdoor space. Excellent transport links include Colne railway station and easy access to the M65 motorway, making this an ideal location for families and commuters alike.

PROPERTY DETAIL
Unless stated otherwise, these details may be in a draft format subject to approval by the property's vendors. Your attention is drawn to the fact that we have been unable to confirm whether certain items included with this property are in full working order. Any prospective purchaser must satisfy themselves as to the condition of any particular item and no employee of Hilton & Horsfall has the authority to make any guarantees in any regard. The dimensions stated have been measured electronically and as such may have a margin of error, nor should they be relied upon for the purchase or placement of furnishings, floor coverings etc. Details provided within these property particulars are subject to potential errors, but have been approved by the vendor(s) and in any event, errors and omissions are excepted. These property details do not in any way, constitute any part of an offer or contract, nor should they be relied upon solely or as a statement of fact. In the event of any structural changes or developments to the property, any prospective purchaser should satisfy themselves that all appropriate approvals from Planning, Building Control etc, have been obtained and complied with.

PUBLISHING
You may download, store and use the material for your own personal use and research. You may not republish, retransmit, redistribute or otherwise make the material available to any party or make the same available on any website, online service or bulletin board of your own or of any other party or make the same available in hard copy or in any other media without the website owner's express prior written consent. The website owner's copyright must remain on all reproductions of material taken from this website. www.hilton-horsfall.co.uk

Externally, the property offers a beautifully maintained and private plot with a neatly landscaped garden to the rear, featuring lawned areas, well-stocked borders, and a pleasant patio seating space ideal for outdoor dining and relaxation. To the front, there is a driveway providing ample off-road parking and access to a detached garage. The home enjoys an attractive setting within a quiet residential cul-de-sac, surrounded by other well-kept homes and close to scenic countryside walks.


What's Nearby?

floorplanfloorplanfloorplanfloorplanfloorplan

Get in touch

Hilton & Horsfall, Barrowford
BB9 6DX
BOOK A VIEWING

Download this property brochure

DOWNLOAD BROCHURE

Try our calculators

Mortgage Calculator

Stamp Duty Calculator

Similar Properties