GROUND FLOOR
ENTRANCE PORCH
HALLWAY
A bright and welcoming hallway with wood-effect flooring, half-height dado detailing and stylish patterned décor. Features include a fitted storage unit, coat hooks and a large side window allowing plenty of natural light. Doors lead to the kitchen and living areas, with stairs rising to the first floor.
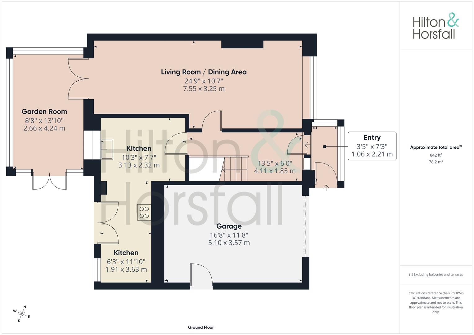
LIVING ROOM / DINING AREA 7.55m x 3.25m (24'9" x 10'7")
A stylish open-plan living and dining space finished with wood-effect flooring and panelled feature walls. The living area enjoys a large front window, a contemporary fireplace and ample space for seating. The dining area comfortably accommodates a family table and opens through to the garden room, creating an excellent flow for entertaining and everyday living.
GARDEN ROOM 2.66m x 4.24m (8'8" x 13'10")
A bright and versatile garden room with large windows on all sides, enjoying views over the rear garden. Finished with wood-effect flooring and French doors opening onto the decking, it offers an ideal space for relaxing, dining or use as a playroom.
KITCHEN 3.13m x 2.32 + 3.63m x 1.91m (10'3" x 7'7" + 11'10
A modern, extended kitchen fitted with a range of neutral wall and base units, contrasting worktops and tiled splashbacks. Enjoys excellent natural light from multiple windows and French doors opening to the rear garden. Includes an integrated oven and hob with extractor, plus ample space for appliances and generous worktop areas ideal for food preparation.
FIRST FLOOR / LANDING
A bright landing area with a feature window providing pleasant views and natural light. Offers access to all three bedrooms and the family bathroom, with loft access above.
BEDROOM ONE 3.96m x 2.97m (12'11" x 9'8")
A generous double bedroom positioned at the front of the property, featuring a large window, fitted wardrobes and neutral décor. Offers ample space for additional furnishings and enjoys a bright, airy feel.
BEDROOM TWO 3.30m x 2.95m (10'9" x 9'8")
A well-proportioned bedroom overlooking the rear garden, finished in neutral tones with plenty of natural light. Offers space for a bed, storage and a desk or dressing area, making it ideal as a child’s bedroom or comfortable guest room.
BEDROOM THREE 3.05m x 2.00m (10'0" x 6'6")
A bright single bedroom positioned at the front of the property, ideal as a nursery, home office or dressing room. Features a large window, neutral décor and space for essential furnishings.
SHOWER ROOM 1.99m x 1.67m (6'6" x 5'5")
A modern shower room finished with contemporary grey tiling and a walk-in glazed shower enclosure. Includes a vanity unit with inset wash basin, low-level WC and a frosted window providing natural light and privacy.
LOCATION
Situated in a quiet cul-de-sac within a popular residential area of Padiham, this property offers a peaceful setting whilst remaining close to local amenities. Schools, shops and supermarkets are all within easy reach, along with Padiham town centre and its range of independent cafés and services. Excellent transport links are available via the A671 and M65 motorway network, making commuting to Burnley, Blackburn and beyond straightforward. Scenic walking routes and nearby parks also provide great outdoor space for families and dog walkers.
PUBLISHING
You may download, store and use the material for your own personal use and research. You may not republish, retransmit, redistribute or otherwise make the material available to any party or make the same available on any website, online service or bulletin board of your own or of any other party or make the same available in hard copy or in any other media without the website owner's express prior written consent. The website owner's copyright must remain on all reproductions of material taken from this website. www.hilton-horsfall.co.uk
PROPERTY DETAIL
Unless stated otherwise, these details may be in a draft format subject to approval by the property's vendors. Your attention is drawn to the fact that we have been unable to confirm whether certain items included with this property are in full working order. Any prospective purchaser must satisfy themselves as to the condition of any particular item and no employee of Hilton & Horsfall has the authority to make any guarantees in any regard. The dimensions stated have been measured electronically and as such may have a margin of error, nor should they be relied upon for the purchase or placement of furnishings, floor coverings etc. Details provided within these property particulars are subject to potential errors, but have been approved by the vendor(s) and in any event, errors and omissions are excepted. These property details do not in any way, constitute any part of an offer or contract, nor should they be relied upon solely or as a statement of fact. In the event of any structural changes or developments to the property, any prospective purchaser should satisfy themselves that all appropriate approvals from Planning, Building Control etc, have been obtained and complied with.
To the front of the property is a long driveway providing ample off-road parking, together with a small lawned garden area. The generous rear garden enjoys a mix of lawn, decking and a large paved patio—ideal for outdoor dining, play equipment or entertaining. Mature trees and planting provide a good degree of privacy, while a winding pathway leads through the garden, making the space both practical and attractive.
