Sold STC
Virtual Tour
£154,950 OIRO

Manchester Road, Accrington

  • Type: House
  • Availability: Sold STC
  • Bedrooms: 3
  • Bathrooms: 1
  • Reception Rooms: 2
  • Council Tax Band: C
  • Tenure: Leasehold
A well-presented three bedroomed mid-terraced home situated in the heart of Baxenden, ideal for families and first-time buyers alike. The ground floor offers generous living accommodation including a ...

Key Features

  • Terraced
  • Three bedrooms
  • Two reception rooms
  • Outhouse
  • Bathroom
  • Sought after area


Full property description


A well-presented three bedroomed mid-terraced home situated in the heart of Baxenden, ideal for families and first-time buyers alike. The ground floor offers generous living accommodation including a spacious family living room, a separate dining room perfect for entertaining, and a fitted kitchen. To the first floor are three well-proportioned bedrooms and a contemporary three-piece bathroom suite. Externally, the property benefits from a neat forecourt to the front and a low-maintenance flagged rear yard, complete with an outhouse which has power—ideal for storage or workshop use.

ENTRANCE
With a uPVC double glazed door leading to:

VESTIBULE
Providing access to the living room.

LIVING ROOM 5.39 x 4.50 (17'8" x 14'9")
A family sized living room with an electric fire set within a feature fire place, 1x radiator, coving, wood effect flooring, solid hard wood double doors leading to the dining room and a uPVC bay window to the front elevation.

DINING ROOM 4.27 x 4.44 (14'0" x 14'6")
A spacious dining room with ample room for a large table, gas fire set within a feature fireplace, coving, 2x radiators, wood effect flooring and a uPVC double glazed window to the rear elevation.

KITCHEN 3.24 x 2.22 (10'7" x 7'3")
With a range of wall and base units, having integrated appliances such as a dishwasher, 4 ring gas hob, electric oven and breakfast bar. The kitchen also boasts plumbing for a washing machine, partially tiled walls, uPVC double glazed window to the rear elevation and a uPVC double glazed door leading to the rear yard.

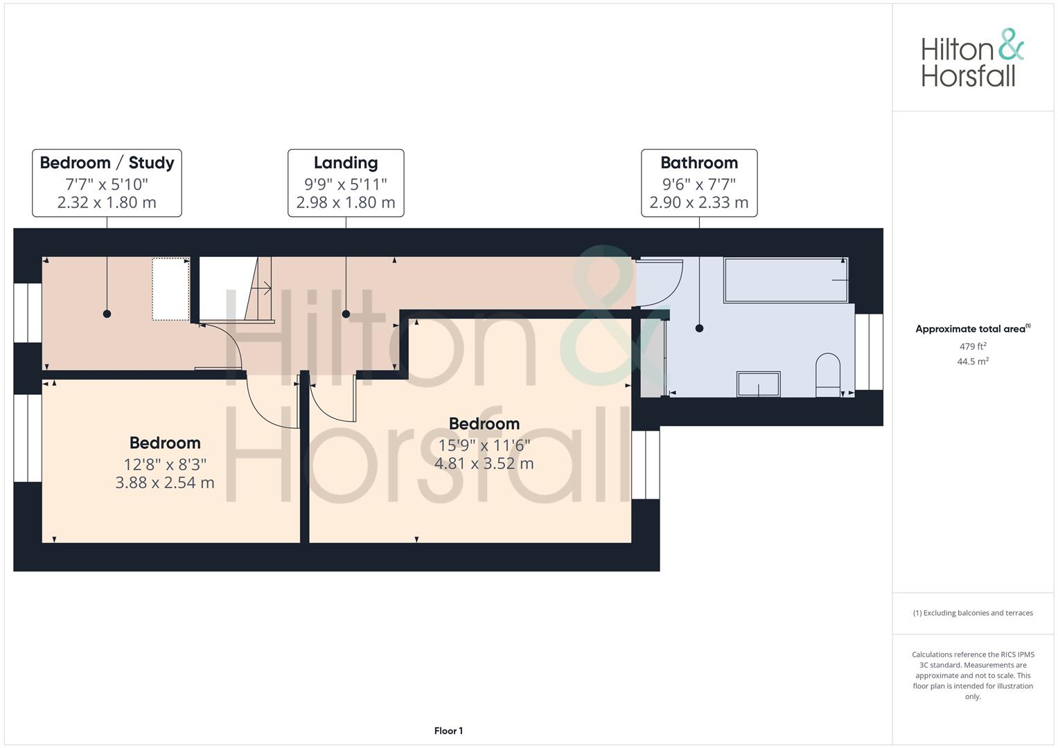
FIRST FLOOR / LANDING
With 1x radiator and access to the loft.

BEDROOM ONE 4.81 x 3.52 (15'9" x 11'6")
A good sized double bedroom with fitted wardrobes, 1x radiator, coving, wood effect flooring and a uPVC double glazed window to the rear elevation.

BEDROOM TWO 3.88 x 2.54 (12'8" x 8'3")
Another bedroom of double proportion with wood effect flooring, 1x radiator and a uPVC double glazed window to the front elevation.

BEDROOM THREE / STUDY 2.32 x 1.80 (7'7" x 5'10")
A single bedroom which could also be used a study, with 1x radiator and a uPVC double glazed window to the front elevation.

BATHROOM 2.90 x 2.33 (9'6" x 7'7")
A contemporary three piece suite with a panelled bath and shower over, pedestal sink with chrome mixer tap, push button w.c, heated towel rail in chrome, built in storage cupboard, partially tiled walls and a frosted uPVC double glazed window to the rear elevation.

360 DEGREE VIRTUAL TOUR
https://tour.giraffe360.com/manchester-rd-accrington/

PUBLISHING

PROPERTY DETAIL

Externally, the property benefits from a neat forecourt to the front and a low-maintenance flagged rear yard, complete with an outhouse which has power—ideal for storage or workshop use.


What's Nearby?

floorplanfloorplanfloorplan

Get in touch

Hilton & Horsfall, Barrowford
BB9 6DX

Download this property brochure

DOWNLOAD BROCHURE

Try our calculators

Mortgage Calculator

Stamp Duty Calculator

Similar Properties