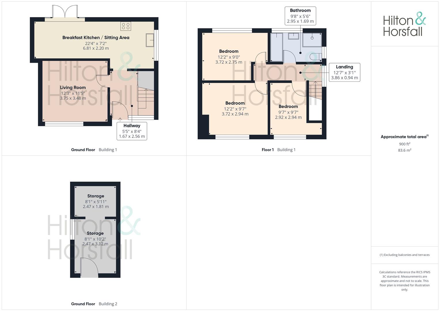
GROUND FLOOR
ENTRANCE HALLWAY
A welcoming and stylish hallway setting the tone for the rest of the home, with a modern composite entrance door and side window allowing natural light to flow in. Finished with contemporary décor, wood–effect flooring, radiator, and under–stairs storage. Provides access to the living room and kitchen, with a staircase leading to the first floor.
LIVING ROOM 3.75m x 3.48m (12'3" x 11'5")
A bright and stylish reception room positioned to the front elevation, finished to a high standard with modern panelling detail and neutral décor. The room is centred around a large window which allows plenty of natural light to flood in, and is complete with ceiling spotlights, plush fitted carpet and contemporary wall shelving. An inviting and comfortable space, perfect for relaxing or entertaining.
BREAKFAST KITCHEN / SITTING AREA 6.81m x 2.20m (22'4" x 7'2")
A stunning open–plan kitchen and sitting space, beautifully designed for modern family living. The kitchen is fitted with a range of cream shaker–style wall, drawer and base units, complemented by contrasting work surfaces and a stainless steel splashback. Features include an integrated wine rack, space for an American–style fridge freezer, plumbing for appliances and a large range cooker with extractor canopy above. The kitchen flows into a relaxed sitting area and dining space, perfect for both everyday living and entertaining. Finished with wood–effect flooring, ceiling spotlights and a window overlooking the rear. French doors open directly onto the raised decked terrace, seamlessly connecting the indoor and outdoor living areas.
FIRST FLOOR / LANDING
BEDROOM ONE 3.72m x 2.75m (12'2" x 9'0")
A generously sized double bedroom positioned to the front elevation, finished in soft neutral tones with a fitted carpet. The room offers ample space for wardrobes and bedroom furniture, with a large window providing natural light and a pleasant outlook. A calm and inviting principal bedroom.
BEDROOM TWO 3.72m x 2.94m (12'2" x 9'7")
Another spacious double bedroom, located to the rear elevation and enjoying far–reaching views. Finished in neutral tones with fitted carpet, this room provides ample space for wardrobes and furniture, making it an ideal children’s bedroom, guest room or second double.
BEDROOM THREE 2.92m x 2.94m (9'6" x 9'7")
A well–proportioned third bedroom positioned to the front elevation. Currently used as a children’s room, it features fitted carpet, modern décor and a large window allowing natural light to brighten the space. Equally suited as a single bedroom, nursery or home office.
BATHROOM 2.95m x 1.69m (9'8" x 5'6")
A modern three–piece bathroom suite comprising a panelled bath, pedestal wash basin and a low–level WC. The room also benefits from a separate walk–in shower with glass screen. Finished with fully tiled walls, ceiling spotlights, frosted windows and vinyl flooring.
STORAGE / GARAGE 2.47m x 3.12m (8'1" x 10'2")
A substantial detached outbuilding positioned to the rear of the garden, currently used for storage. Offering versatile use as a workshop, home gym or garden store, with power and lighting connected.
LOCATION
Situated on Briercliffe Road, this property is ideally placed for a wide range of local amenities. Burnley General Hospital is just a short distance away, along with excellent schools, shops and leisure facilities. The area also benefits from strong transport links, with easy access into Burnley town centre and towards neighbouring towns and the M65 motorway network.
360 DEGREE VIRTUAL TOUR
https://tour.giraffe360.com/briercliffe-rd-bly
PUBLISHING
You may download, store and use the material for your own personal use and research. You may not republish, retransmit, redistribute or otherwise make the material available to any party or make the same available on any website, online service or bulletin board of your own or of any other party or make the same available in hard copy or in any other media without the website owner's express prior written consent. The website owner's copyright must remain on all reproductions of material taken from this website. www.hilton-horsfall.co.uk
PROPERTY DETAIL
Unless stated otherwise, these details may be in a draft format subject to approval by the property's vendors. Your attention is drawn to the fact that we have been unable to confirm whether certain items included with this property are in full working order. Any prospective purchaser must satisfy themselves as to the condition of any particular item and no employee of Hilton & Horsfall has the authority to make any guarantees in any regard. The dimensions stated have been measured electronically and as such may have a margin of error, nor should they be relied upon for the purchase or placement of furnishings, floor coverings etc. Details provided within these property particulars are subject to potential errors, but have been approved by the vendor(s) and in any event, errors and omissions are excepted. These property details do not in any way, constitute any part of an offer or contract, nor should they be relied upon solely or as a statement of fact. In the event of any structural changes or developments to the property, any prospective purchaser should satisfy themselves that all appropriate approvals from Planning, Building Control etc, have been obtained and complied with.
To the front, the property features a gravelled driveway with neat lawned garden and mature planting. The rear has been landscaped to include a raised decked seating area, artificial lawn and flower borders – perfect for family life and entertaining. The garden is complemented by a substantial storage unit, offering versatile use as a workshop or garden store.
