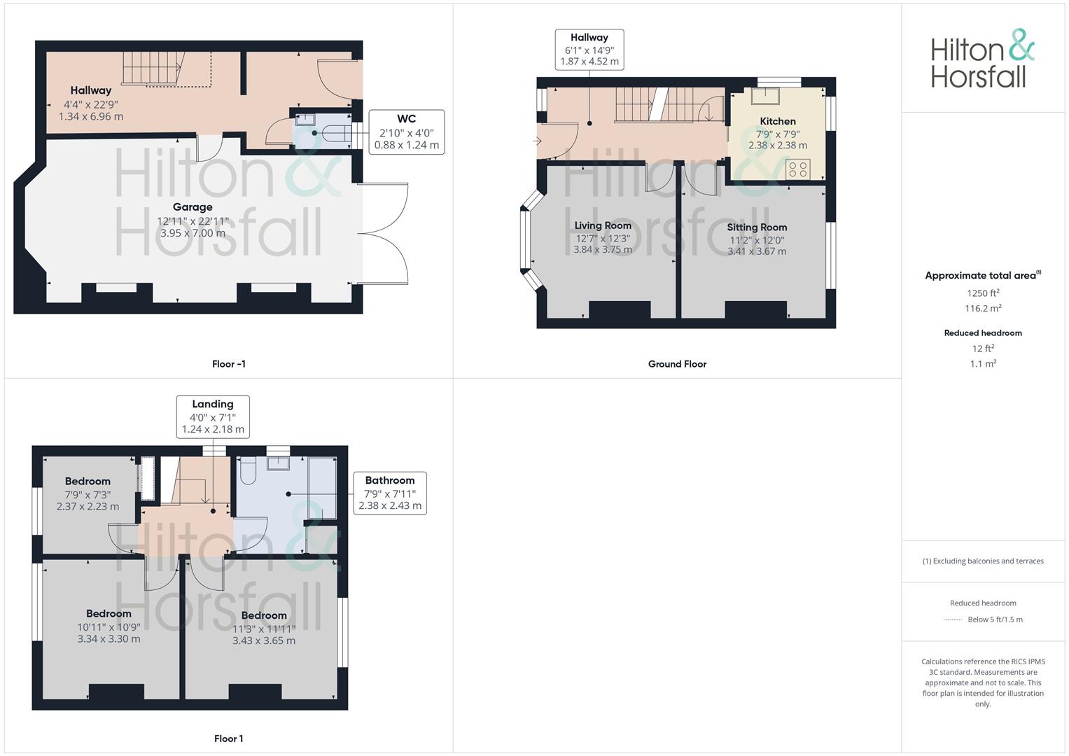
GROUND FLOOR
ENTRANCE HALL
A bright and welcoming hallway sets the tone as you enter the property, with a staircase leading to the first floor and direct access to the main reception rooms and kitchen. The neutral décor and light wood-effect flooring enhance the sense of space and light, while a door beneath the stairs provides access down to the integral garage.
LIVING ROOM 3.84m x 3.75m (12'7" x 12'3")
A bright and welcoming main reception room positioned to the front of the property, featuring a large bay window that floods the space with natural light while offering a pleasant outlook towards Whalley Nab. The generous proportions make this an ideal space for both relaxing and entertaining, while the neutral décor provides a versatile blank canvas ready to suit any style of furnishings.
SITTING ROOM 3.41m x 3.67m (11'2" x 12'0")
Located to the rear of the property and overlooking the garden, this second reception room offers a versatile and comfortable living space — ideal for use as a family lounge, snug, or formal dining room. A feature fireplace adds a cosy focal point, while the large window allows natural light to pour in and provides a pleasant outlook onto the garden. This flexible room can easily be adapted to suit a variety of lifestyles and needs, whether for relaxing evenings in or entertaining family and friends.
KITCHEN 2.38m x 2.38m (7'9" x 7'9")
The well-appointed kitchen is fitted with a range of wall and base units complemented by ample worktop space and tiled splashbacks. A large window allows plenty of natural light to flow in, creating a bright and airy atmosphere, while offering pleasant views towards the rear garden. The space is equipped with an integrated oven, four-ring gas hob, and stainless-steel sink with drainer. With its practical layout and easy access to the reception rooms, this kitchen provides an excellent foundation for everyday family living and offers plenty of potential for future modernisation or personalisation.
LOWER GROUND
HALLWAY
UTILITY AREA
Located on the lower level with access from the hallway, the property benefits from a useful utility space — ideal for housing laundry appliances and providing additional storage. The room also features a door opening directly out to the rear, offering convenient access to the garden and driveway.
WC 1.24m x 0.88m (4'0" x 2'10")
Conveniently positioned on the lower ground floor, the property benefits from a useful two-piece cloakroom fitted with a low-level WC and wash basin. This additional facility is ideal for guests or for use when working or spending time in the garage, utility area, or garden.
GARAGE 3.95m x 7.00m (12'11" x 22'11")
Accessed internally from the hallway or externally via double doors to the rear, the property features a spacious integral garage with power, lighting, and ample storage space. This versatile area offers excellent potential — ideal for secure parking, workshop use, or additional storage — and could even be adapted for alternative uses, subject to the necessary consents.
FIRST FLOOR / LANDING
A bright and welcoming landing area connects the three bedrooms and family bathroom, with a feature stained-glass window adding a touch of character. The space is naturally lit and neutrally decorated, creating a light and airy feel as you move through the first floor.
BEDROOM ONE 3.34m x 3.30m (10'11" x 10'9")
Positioned to the front of the property, this generous double bedroom enjoys an attractive outlook over Whalley Nab and the surrounding countryside. The large window fills the room with natural light, creating a bright and peaceful space — ideal as a principal bedroom. With neutral décor and ample room for wardrobes and additional furniture, it offers a comfortable retreat with plenty of scope to personalise.
BEDROOM TWO 3.43m x 3.65m (11'3" x 11'11")
A second generous double bedroom positioned to the rear of the property, enjoying a peaceful outlook over the garden and surrounding greenery. The large window floods the space with natural light, making it feel bright and inviting. With ample space for bedroom furniture, this versatile room is ideal as a guest bedroom, children’s room, or home office if preferred.
BEDROOM THREE 2.37m x 2.23m (7'9" x 7'3")
BATHROOM 2.38m x 2.43m (7'9" x 7'11")
The family bathroom is fitted with a three-piece suite comprising a panelled bath with overhead shower and glass screen, pedestal wash basin, and low-level WC. Fully tiled walls create a clean and practical finish, while a frosted window allows for natural light and ventilation. The space is well-proportioned and offers an excellent base for modernisation or personalisation to suit individual style.
360 DEGREE VIRTUAL TOUR
https://tour.giraffe360.com/accrington-rd-whalley
LOCATION
Whalley is one of the Ribble Valley’s most desirable and vibrant villages — renowned for its welcoming community, independent shops, restaurants, wine bars, and scenic surroundings. The property is within easy walking distance of the bustling village centre, train station (with direct links to Manchester and Blackburn), and an excellent selection of highly regarded schools, including Whalley C of E Primary School and St Augustine’s RC High School. The area is also surrounded by beautiful countryside, with countless walking trails, cycle routes, and outdoor activities right on your doorstep — all while maintaining superb commuter links to Clitheroe, Preston, Blackburn, and Manchester.
PROPERTY DETAIL
Unless stated otherwise, these details may be in a draft format subject to approval by the property's vendors. Your attention is drawn to the fact that we have been unable to confirm whether certain items included with this property are in full working order. Any prospective purchaser must satisfy themselves as to the condition of any particular item and no employee of Hilton & Horsfall has the authority to make any guarantees in any regard. The dimensions stated have been measured electronically and as such may have a margin of error, nor should they be relied upon for the purchase or placement of furnishings, floor coverings etc. Details provided within these property particulars are subject to potential errors, but have been approved by the vendor(s) and in any event, errors and omissions are excepted. These property details do not in any way, constitute any part of an offer or contract, nor should they be relied upon solely or as a statement of fact. In the event of any structural changes or developments to the property, any prospective purchaser should satisfy themselves that all appropriate approvals from Planning, Building Control etc, have been obtained and complied with.
PUBLISHING
You may download, store and use the material for your own personal use and research. You may not republish, retransmit, redistribute or otherwise make the material available to any party or make the same available on any website, online service or bulletin board of your own or of any other party or make the same available in hard copy or in any other media without the website owner's express prior written consent. The website owner's copyright must remain on all reproductions of material taken from this website. www.hilton-horsfall.co.uk
To the front of the property is a low-maintenance garden area with a boundary wall and gate, setting the house back slightly from the roadside and enhancing kerb appeal. The elevated position also allows for a pleasant open aspect with views towards Whalley Nab. To the rear, the property benefits from a gated driveway providing valuable off-road parking, along with access to the integral garage. There is also a private, low-maintenance garden / patio area, offering an ideal outdoor space for relaxing, entertaining, or al fresco dining. The combination of off-road parking, a secure garage, and an easy-to-manage garden makes the exterior both practical and appealing — perfectly suited to modern family living.
